Price £750,000 - New Instruction


  • SUPERB POSITION IN POPULAR RESIDENTIAL ROAD
  • BEAUTIFULLY PRESENTED
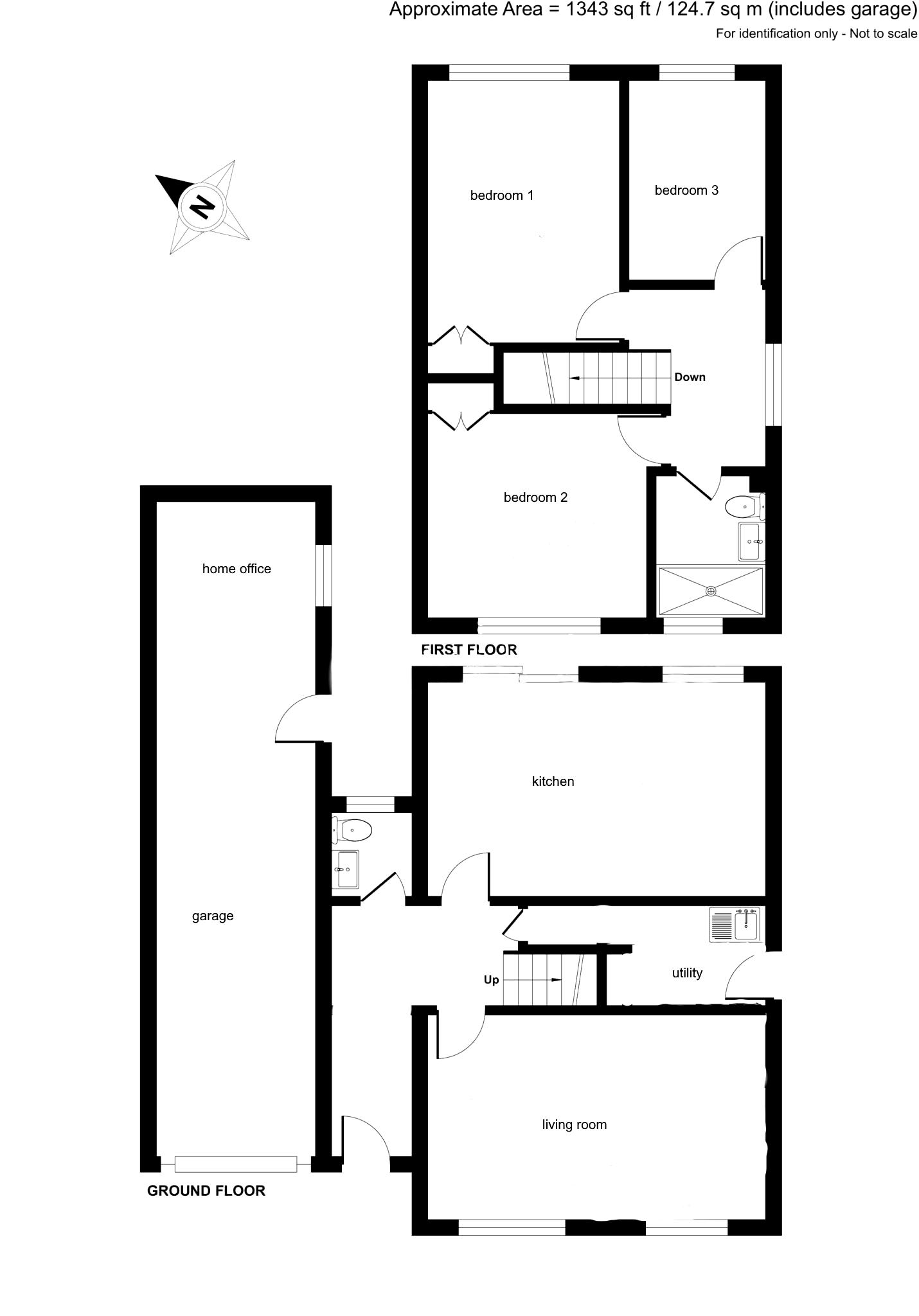
  • LARGE KITCHEN BREAKFAST ROOM
  • THREE DOUBLE BEDROOMS
  • PLENTIFUL STORAGE
  • REDECORATED THROUGHOUT
  • LARGE EXTENDED GARAGE WITH HOME OFFICE
  • ATTRACTIVE GARDEN WITH PATIO
  • DRIVEWAY PARKING
  • POTENTIAL TO EXTEND SUBJECT TO PLANNING



Step into a welcoming entrance hall with elegant oak flooring, setting the tone for the rest of this stylish and well-maintained home.

To the front, a bright and airy front aspect reception room offers a perfect space for relaxing or entertaining, recently redecorated and newly carpeted throughout.



From the hallway, doors lead to a convenient downstairs cloakroom and WC and a large utility room that accommodates a washing machine and houses the boiler. There is a side door providing easy access to the rear garden and front.



The heart of the home is the impressive kitchen and breakfast room, recently re-fitted with painted cabinetry, sleek quartz worktops, and integrated appliances.

Sliding doors open onto an attractive garden featuring a well kept lawn and a sunny patio area, ideal for outdoor dining and family time.
From the garden a door leads to the garage, which has been thoughtfully extended to include a home office or study area, perfect for remote working or hobbies.



Upstairs, you'll find three generous double bedrooms.

The front facing principal bedroom includes excellent built-in storage, while the second and third bedrooms, both with rear aspects, are bright and well-proportioned.

The modern family bathroom features a contemporary white suite with a rainfall shower over the bath.



Outside, the property benefits from driveway parking, a garage, and an appealing front approach.



This beautifully updated home combines practicality, space, and style, ready to move straight into and enjoy.

Henley-on-Thames is one of Oxfordshire's most desirable market towns, offering an exceptional quality of life surrounded by natural beauty.
Nestled on the banks of the River Thames, it's renowned for its picturesque scenery, historic architecture, and vibrant community spirit.
Residents enjoy a wealth of independent shops, cafés, and award-winning restaurants, as well as excellent schools and convenient transport links to London, Reading, and Oxford. The town hosts world-famous events such as the Henley Royal Regatta and Henley Festival, adding a lively cultural flair to its charming riverside atmosphere.
With miles of beautiful countryside walks, boating opportunities, and a friendly, welcoming feel, Henley-on-Thames perfectly blends relaxed rural living with sophisticated modern amenities.
Families are well catered for with top quality schools including state primaries like Sacred Heart Catholic Primary School and secondaries such as Gillotts School, plus independent options including Rupert House School and sixth form provision at The Henley College.





Directions
From the junction of Greys Road proceed up Greys Road and turn right into Deanfield Avenue. After Henley College turn left into Deanfield Road and carry on until Deanfield Road turns left into a a cul de sac leading to Deanacre. Number 43 is situated on the left.

Council Tax
South Oxfordshire District Council, Band E

Notice
Please note we have not tested any apparatus, fixtures, fittings, or services. Interested parties must undertake their own investigation into the working order of these items. All measurements are approximate and photographs provided for guidance only.

Floor Plan
EER Chart

The Energy-Efficiency Rating is a measure of a home's overall efficiency. The higher the rating, the more energy-efficient the home is, and the lower the fuel bills are likely to be.

Utility Supply Type
Electric Mains Supply
Gas Mains Supply
Water Mains Supply
Sewerage Mains Supply
Broadband ADSL
Telephone None

Other Items Description
Heating Not Specified
Garden/Outside Space Yes
Parking Yes
Garage Yes

Broadband Coverage Highest Available Download Speed Highest Available Upload Speed
Standard Unknown Unknown
Superfast Unknown Unknown
Ultrafast Unknown Unknown

Mobile Coverage Indoor Voice Indoor Data Outdoor Voice Outdoor Data
EE Unknown Unknown Unknown Unknown
Three Unknown Unknown Unknown Unknown
O2 Unknown Unknown Unknown Unknown
Vodafone Unknown Unknown Unknown Unknown

Broadband and Mobile coverage information supplied by Ofcom.


marker icon